DESCRIZIONE PROPRIETÁ
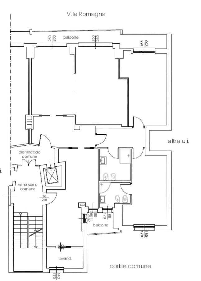
Adiacenze Piazza Ferravilla, a pochi passi dalla nuova fermata della metropolitana quattro, in contesto signorile anni “70 con portineria tutto il giorno e doppio ascensore, appartamento perfettamente ristrutturato di mq 150; due ingressi, grande soggiorno doppio con balcone sul viale, due camere da letto matrimoniali, due bagni, splendida cucina abitabile con ampia zona pranzo e grande balcone rettangolare interno, lavanderia.
Perfettamente ristrutturato con finiture di alta qualità; serramenti tripli antisfondamento, zanzariere, tapparelle elettriche, parquet, aria condizionata, arredi su misura. Ottima esposizione est/ovest
Possibilità di ricavare una terza camera.
Cantina di pertinenza.
PLANIMETRIA


DETTAGLI
POSIZIONE
Viale Romagna, Milano MI, Italia
Tipo di proprietà
Appartamento
Locali
5
Bagni
2
Superficie
mq 150
Piano
1
Esposizione
Doppia
Condizioni
Riscaldamento
Ottime
Centralizzato
Tipologia dello stabile
Signorile
Condizioni dello stabile
Ottime
Piani totali dello stabile
8
Anno di costruzione
Giardino condominiale
Spese condominiali
1970
No
€ 5.500 annui
Portineria
Si
Ape
F - 224,11
Pertinenze
Cantina
Ascensore
Si doppio
Box
No
























