DESCRIZIONE PROPRIETÁ
Corso Indipendenza: nel più bel palazzo d’epoca di via Pisacane, tranquillo appartamento al primo piano con stupendo affaccio sul verde del cortile interno; ingresso, ampio soggiorno doppio con cucina a vista, bagno finestrato, camera da letto con vasca in marmo e rubinetto a cascata, finemente ristrutturato (aria condizionata, doppi vetri, zanzariere, persiane blindate etc ) ed arredi su misura compresi.
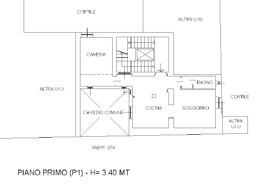
PLANIMETRIA


DETTAGLI
Tipo di proprietà
Appartamento
Locali
3
Bagni
1
Superficie
70 mq
Piano
1
Esposizione
Condizioni
Riscaldamento
Ottime
Centralizzato
POSIZIONE
Via Carlo Pisacane, 20129 Milano MI, Italia
Tipologia dello stabile
Signorile epoca
Condizioni dello stabile
Ottime
Piani totali dello stabile
4
Anno di costruzione
Giardino condominiale
Spese condominiali
No
€ 2.700 annue
Portineria
Si
Ape
G - 175,00
Pertinenze
Cantina
Ascensore
Si
Box
No
























