DESCRIZIONE PROPRIETÁ
ATTICO E SUPERATTICO. In una delle zone più richieste e signorili di Milano, a pochi passi dall’Università Bocconi, proponiamo una soluzione unica caratterizzata da grande luminosità, ampi spazi e vista aperta sulla città.
La proprietà si sviluppa agli ultimi due piani (ottavo e nono) e dispone di balconate e di un ampio terrazzo perimetrale all’ultimo livello.
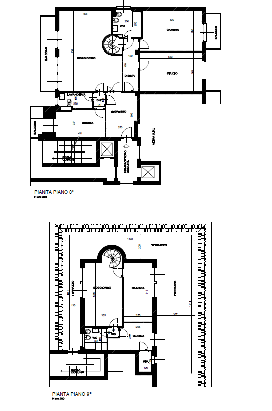
Piano ottavoIngresso su anticamera, ampio soggiorno con grandi vetrate e accesso alla balconata, cucina abitabile separata con balcone. Zona notte con due camere da letto (una con balcone), bagno finestrato e secondo bagno/lavanderia.
Piano nono (superattico)Collegato internamente, ospita tre locali versatili, un bagno ed un ripostiglio. Zona ideali per crearci una zona living di grande rappresentanza circondata dal terrazzo.
La proprietà gode di una vista panoramica a 360 gradi su Milano, con scorci e tramonti unici sullo skyline cittadino.
Possibilità di acquistare autorimessa di circa 60 mq nello stabile (anche frazionabile). Completa la proprietà una cantina.
Piano alto, panorama, terrazzo e grande autorimessa nello stesso stabile sono caratteristiche che sono difficili da reperire sul mercato rendendo unica questa proposta.
Superfici Piano 8°: commerciale 130,81 mq – balconi 16,73 mq
Piano 9°: commerciale 59,42 mq – terrazzo 65,51 mq
PLANIMETRIA


DETTAGLI
Tipo di proprietà
Attico
Locali
7
Bagni
3
Superficie
mq 220
Piano
8
Esposizione
Esterno
Condizioni
Riscaldamento
Da ristrutturare
Centralizzato
POSIZIONE
Via Gian Carlo Castelbarco, Milano MI, Italia
Tipologia dello stabile
Signorile
Condizioni dello stabile
Ottime
Piani totali dello stabile
9
Anno di costruzione
Giardino condominiale
Spese condominiali
1965
Si
€ 8.800 annui
Portineria
Si
Ape
G - 175,00
Pertinenze
Cantina
Ascensore
Si
Box
Possibilità

















